不動産売買物件詳細情報
印刷用画面を開く| 物件名 |
2台駐車可能!オール電化住宅!★当社限定!20万円(税込)分のオプションサービスいたします!(No.2)
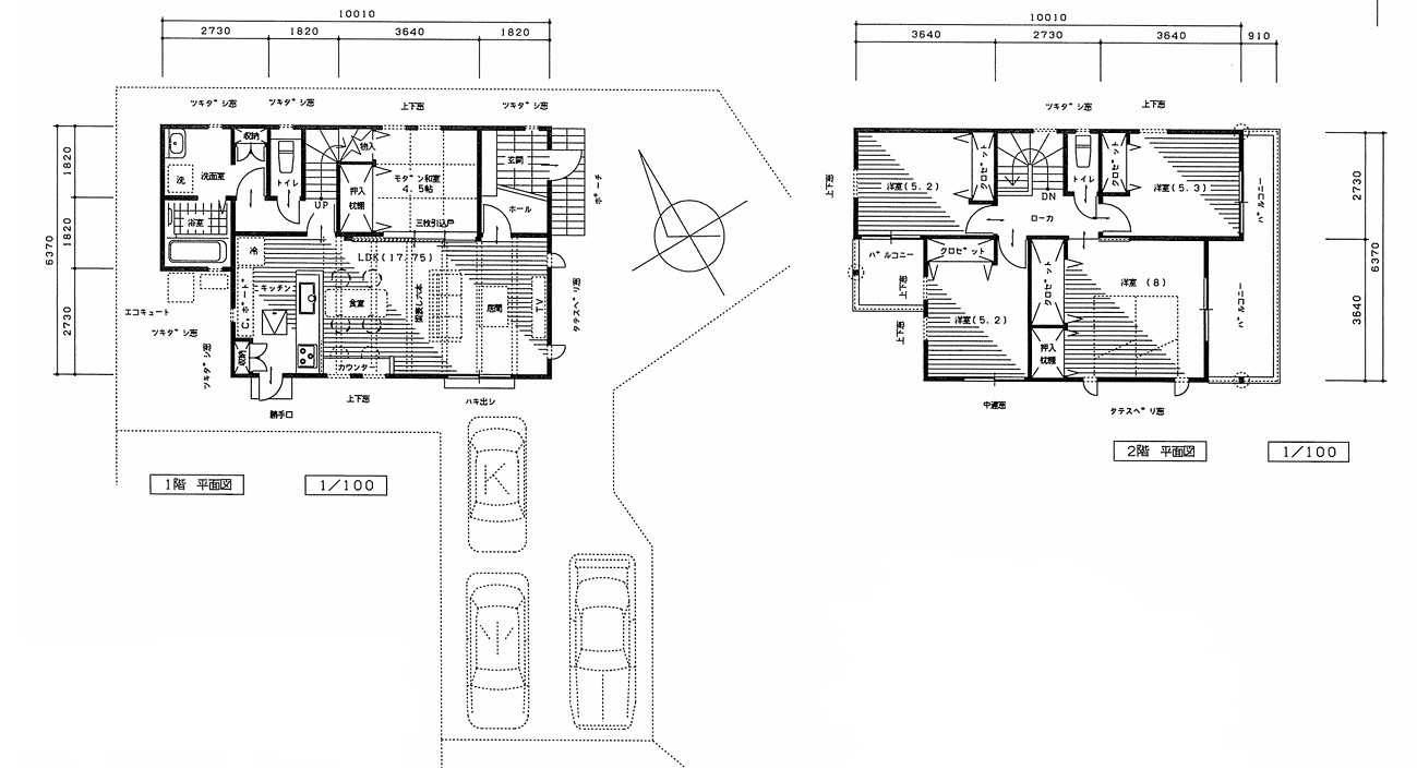
新築戸建 下松市せせらぎ1丁目 5LDK 公集小学校区(No.2)新築一戸建て 5LDK 2026年築 土地面積180.43㎡(55坪) 建物面積112.61㎡(34坪) |
||
|---|---|---|---|
| 販売価格 | 4,280万円 | ||
| 物件所在地/交通 | 34.01452390848307, 131.86162721942134 JR山陽本線 下松駅 徒歩約15分 周辺地図 » |
募集状況 |
募集中
募集中 |
| おすすめポイント |
★相談来店or物件見学どちらでもAmazonギフト2000円分プレゼントいたします! ★当社限定!20万円(税込)分のオプションサービスいたします! ・1階リビングは梁出天井! ・1階ダイニングにスタディカウンターあり! ・オール電化(エコキュート)食器洗乾燥機付のシステムキッチン! ・キッチンには収納スペース付!パントリーや日用品もしっかりしまえます! ・キッチンに勝手口があるので、キッチンからのゴミ出しが便利! ・広々ダブルバルコニー! ・玄関ドア電子錠対応! |
||
|---|---|---|---|
| 間取り | 5LDK | 築年 | 2026年 |
| 土地面積 | 180.43㎡ | 建物面積 | 112.61㎡ |
| 建蔽率 | 60% | 容積率 | 200% |
| 階数/階建 | 2階建 | 学校区 |
公集小学校 末武中学校 |
| 建物構造 | 木造 | 駐車場 |
2台可 |
| 現況 | 建築中 | 引渡時期 | 令和8年8月完成予定 |
| 用途地域 | 第1種住居 | 地目 | 宅地 |
| 地勢 | 平坦 | 取引態様 | 媒介 |
| 都市計画 | 市街化区域 | ||
| その他情報 |
※建築確認番号:R7建確建住セ岩第0319号 ※接道:南 公道(幅員)約16m 上水、下水、オール電化、中国電力 |
||
| 周辺地図 |
周辺地図 » ※実際の所在地ポイントと異なる場合がございます。 |
||
取り扱い不動産会社情報
| 取扱会社名 | オーケイ不動産株式会社 | 営業時間 | 10:00〜18:00(店休日:水・日曜) 完全予約営業日:日曜 ※日曜は「完全予約制」にて営業しております。 内見・相談・その他前日迄にお気軽にご予約下さい。 |
|---|---|---|---|
| 免許番号 | 山口県知事(2)3690号 | 連絡先情報 | 山口県下松市河内1032-1 Free Dial 0120-344-870 TEL.0833-48-8306 |











