不動産売買物件詳細情報
印刷用画面を開く| 物件名 |
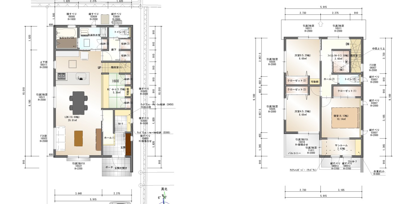
駐車場3台以上可!家族の物語が生まれる3SSLDKオール電化!(No.2)
新築戸建 周南市江の宮町 3SSLDK 秋月小学校区 No.2新築一戸建て 3SLDK 2026年築 土地面積185.88㎡(56坪) 建物面積108.05㎡(33坪) |
||
|---|---|---|---|
| 販売価格 | 3,780万円 | ||
| 物件所在地/交通 | 周南市江の宮町6-27 JR山陽本線「徳山駅」徒歩 約47分 周辺地図 » |
募集状況 |
募集中
募集中 |
| おすすめポイント |
・市街地へのアクセスも便利な立地です! ・オール電化(エコキュート) ・食器洗乾燥機付のパーティーキッチン ・キッチンのデザインに合わせたカップボードも裾付! ・玄関ドア電子錠対応 ・2Fホールにファミリークローク付 ・全居室に収納スペース完備◎ ・南向きにサンルームと広々バルコニー付 ・前面道路も広く、駐車が苦手な方でもゆったり車止めができます! ☆住宅性能も設備も充実! ・省エネ基準適合住宅 ・外壁光セラ(KMEW) ・制振ダンパー(住友ゴム”MAMORY”) ・フラット35S(金利Bプラン)対応 ・瑕疵担保責任保険(まもりすまい保険) ・キッチンに勝手口があるので、キッチンからのゴミ出しが便利! ・外構工事も完成後の引渡しなので、大変な工事対応不要! |
||
|---|---|---|---|
| 間取り | 3SLDK | 築年 | 2026年 |
| 土地面積 | 185.88㎡ | 建物面積 | 108.05㎡ |
| 建蔽率 | 50% | 容積率 | 80% |
| 階数/階建 | 2階建 | 学校区 |
秋月小学校 秋月中学校 |
| 建物構造 | 木造 | 駐車場 |
3台以上可 |
| 現況 | 建築中 | 引渡時期 | 令和8年5月完成予定 |
| 用途地域 | 第1種低層住居専用地域 | 地目 | 宅地 |
| 地勢 | 平坦 | 取引態様 | 媒介 |
| 都市計画 | 市街化区域 | ||
| その他情報 |
※建築確認番号:R7建確建住セ岩第0248号 |
||
| 周辺地図 |
周辺地図 » ※実際の所在地ポイントと異なる場合がございます。 |
||
取り扱い不動産会社情報
| 取扱会社名 | オーケイ不動産株式会社 | 営業時間 | 10:00〜18:00(店休日:水・日曜) 完全予約営業日:日曜 ※日曜は「完全予約制」にて営業しております。 内見・相談・その他前日迄にお気軽にご予約下さい。 |
|---|---|---|---|
| 免許番号 | 山口県知事(2)3690号 | 連絡先情報 | 山口県下松市河内1032-1 Free Dial 0120-344-870 TEL.0833-48-8306 |









