不動産売買物件詳細情報
印刷用画面を開く| 物件名 |
駐車場2台可!快適4LDKオール電化!★20万円(税込)分のオプションサービスいたします★
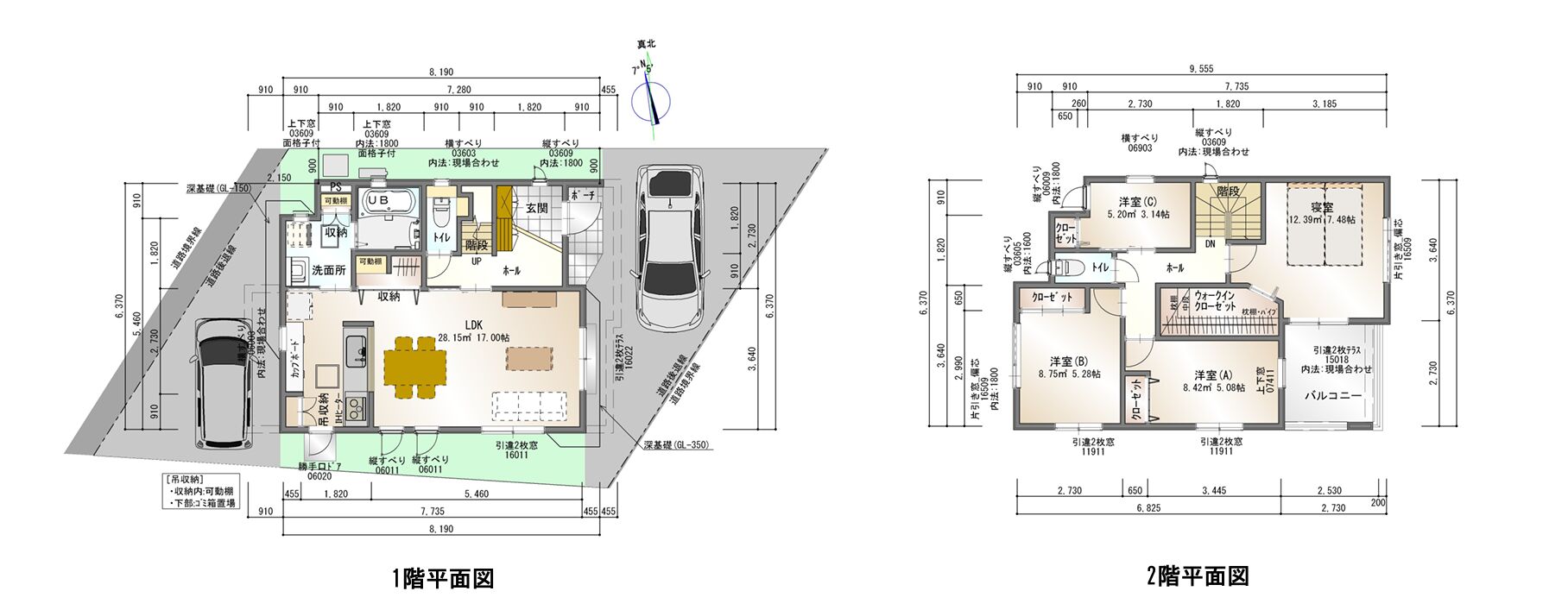
新築戸建 下松市美里町4丁目 4LDK 公集小学校新築一戸建て 4LDK 2026年築 土地面積116.19㎡(35坪) 建物面積101.76㎡(31坪) |
||
|---|---|---|---|
| 販売価格 |
3,180万円
|
||
| 物件所在地/交通 | 下松市美里町4-14-7 防長交通バス停「平田西」徒歩 約5分 周辺地図 » |
募集状況 |
募集中
募集中 |
| おすすめポイント |
★相談来店or物件見学どちらでもAmazonギフト2000円分プレゼントいたします! ★当社限定!20万円(税込)分のオプションサービスいたします! ・オール電化(IHクッキングヒーター、エコキュート) ・公集小学校まで徒歩2分◎ ・近隣に 商業施設、公園、コンビニ、スーパー、飲食店あり生活に便利です! ・玄関ドア電子錠対応! ◎性能設備も充実! ・省エネ基準適合住宅 ・外壁光セラ(KMEW) ・アルミ樹脂複合サッシ+オールLow-Eペアガラス ・制振ダンパー(住友ゴム"MAMORY") ・フラット35S(金利Bプラン)対応 ・瑕疵担保責任保険(まもりすまい保険) ・食器洗乾燥機付システムキッチン! ・キッチンのデザインに合わせたカップボードも裾付! ・キッチンに勝手口があるので、キッチンからのゴミ出しが便利! ・外構工事完成後の引渡しなので大変な工事対応不要! |
||
|---|---|---|---|
| 間取り | 4LDK | 築年 | 2026年 |
| 土地面積 | 116.19㎡ | 建物面積 | 101.76㎡ |
| 建蔽率 | 60% | 容積率 | 160% |
| 階数/階建 | 2階建 | 学校区 |
公集小学校 末武中学校 |
| 建物構造 | 木造 | 駐車場 |
2台可 |
| 現況 | 完成 | 引渡時期 | 相談 |
| 用途地域 | 第1種住居地域 | 地目 | 宅地 |
| 地勢 | 平坦 | 取引態様 | 媒介 |
| 都市計画 | 市街化区域 | ||
| その他情報 |
上水、下水、中国電力、オール電化 ※施工会社:株式会社トーシン住宅 |
||
| 周辺地図 |
周辺地図 » ※実際の所在地ポイントと異なる場合がございます。 |
||
パノラマ
VRやパノラマ映像で物件を体験
お手持ちの専用ゴーグルを使えば、実際にその場にいるような内見感覚を味わえます。
左のQRコードを端末で読み込み、VR表示でお楽しみいただけます。
取り扱い不動産会社情報
| 取扱会社名 | オーケイ不動産株式会社 | 営業時間 | 10:00〜18:00(店休日:水・日曜) 完全予約営業日:日曜 ※日曜は「完全予約制」にて営業しております。 内見・相談・その他前日迄にお気軽にご予約下さい。 |
|---|---|---|---|
| 免許番号 | 山口県知事(2)3690号 | 連絡先情報 | 山口県下松市河内1032-1 Free Dial 0120-344-870 TEL.0833-48-8306 |



















